Annuler le préchargement
×
Événements
Nos Articles
English
Français
Réserver un rendez-vous
Accueil
Nos Projets
À Propos
Notre Vision
Notre Équipe
Nos Expertises
Prix & Distinctions
Publications
Actualités
Événements
Contacts
Nous-Contacter
Informations Pratiques
Prise de Rendez-vous
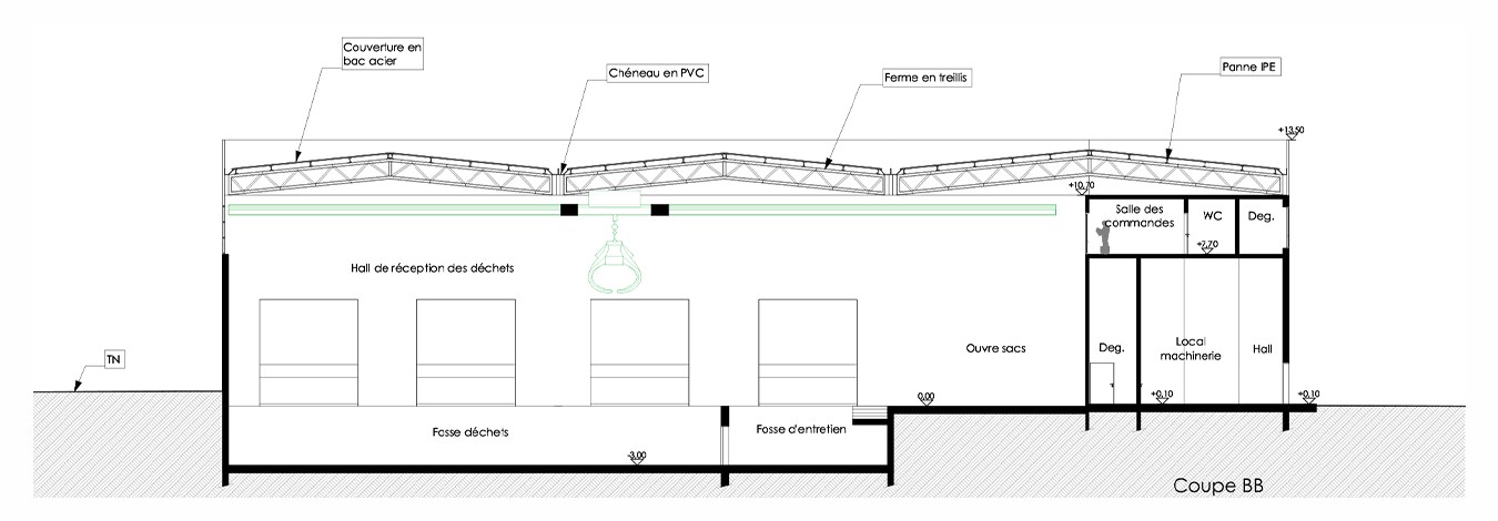
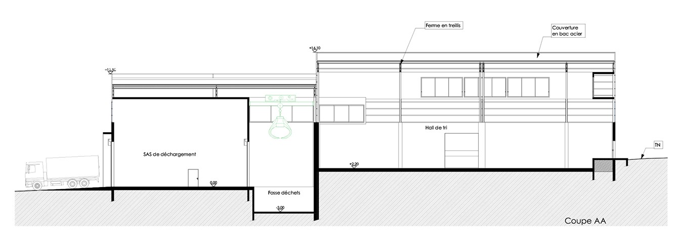
Re-cycle
Accueil
Nos Projets
Re-cycle
Galerie de projet
Type de projet
Concept
Localisation
Lomé, Togo
Année
2022
Votre Nom et Prénom
Votre Email
Votre Téléphone
Document
Type de fichier accepté: txt,pdf
Message
Envoyer
Projet connexe
Eldo Radeau
Cocon de bien-être
Lighting Canopy
Nuages Ter-Cel
Peace pavilion
Re-cycle
Eldo Radeau
Cocon de bien-être
Lighting Canopy
Nuages Ter-Cel
Peace pavilion
Re-cycle
Add to cart
Catégorie:
Subcategory: